Palazzina in stile liberty nella zona più richiesta della città
Terni, Via R.Gradassi Luzi - 650mq ca.
Oggi proponiamo in vendita un interessante investimento immobiliare, intera e storica palazzina in stile liberty, su tre livelli più cantine e giardino con progetto già approvato.
Vediamo nel dettaglio:
L’immobile si trova in Via Riccardo gradassi Luzi, adiacente a via Pascarella, una piccola e silenziosa traversa di zona Poeti, vicina al centro storico ma distante da traffico e rumori.
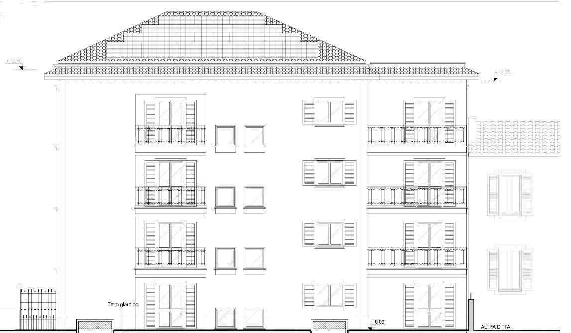
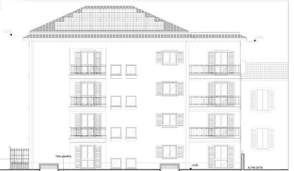
Lo stabile ha dei bellissimi dettagli architettonici con cornici alle finestre adornate da motivi floreali e fogliacei. Attualmente la superficie dell’immobile è di 650,66mq ed è composto da 9 appartamenti, 8 cantine e giardino condominiale recintato.
Il progetto, già approvato, prevede la divisione in 9 appartamenti di varie tipologie e metri quadrati con una, due o tre camere da letto, l’ampliamento del piano interrato con la costruzione di 9 cantine e posti auto, contempla, inoltre, l’installazione non solo di un ascensore dal piano semi interrato all’ultimo ma anche di un ascensore per automobili con ingresso dal piano terra fino al semi interrato.
Il progetto può essere seguito o modificato, l’unico vincolo per il complesso è il mantenimento della sagoma e dei confini.
Contattaci per un sopralluogo e per la visione in agenzia del progetto dello stabile e degli appartamenti e le planimetrie dello stato attuale.
Crea il tuo sito web con Webador